Small Homes

Wood Lilly

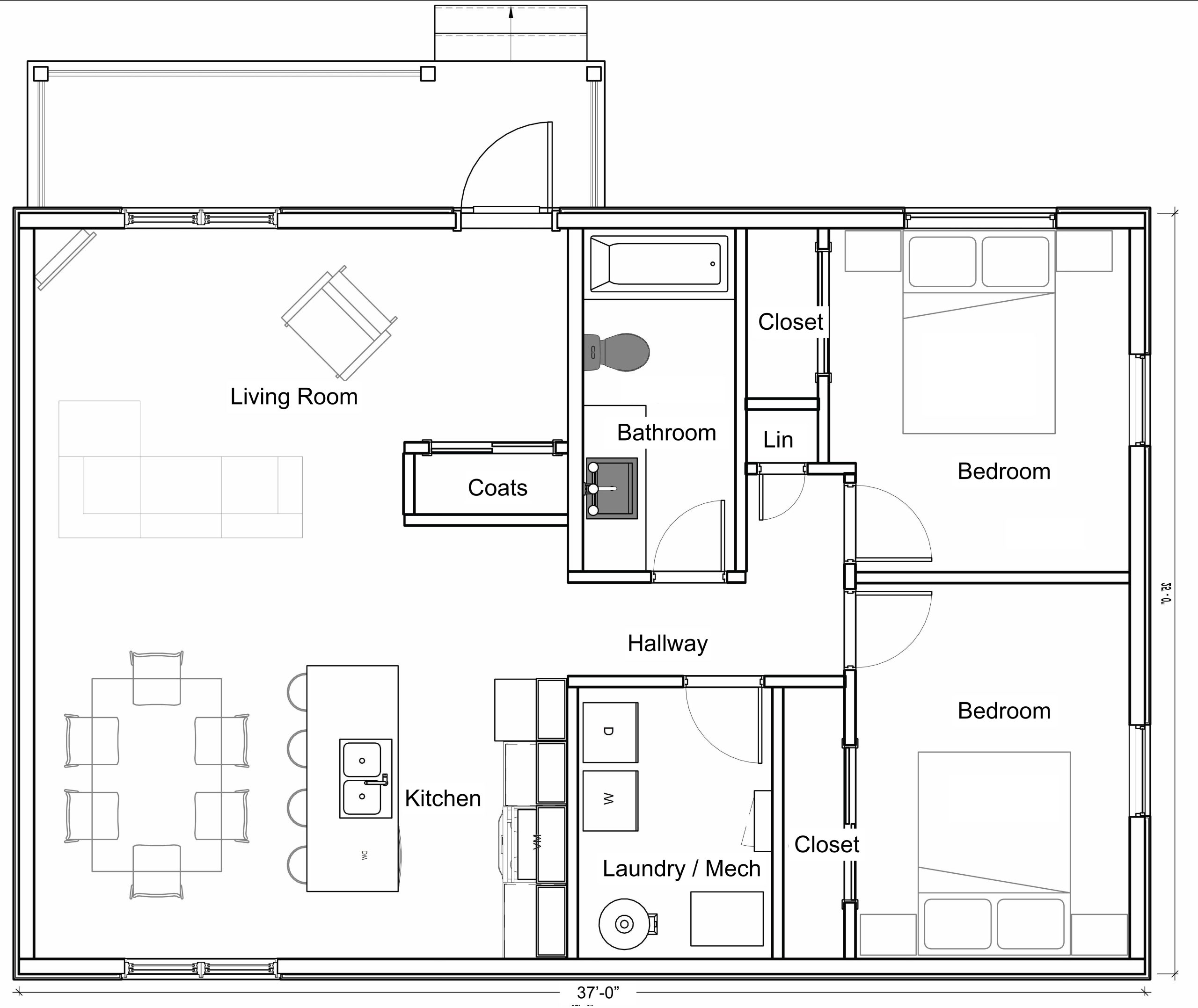
925 SF | 2 Bedroom |
Units #15

Feature Packed

Exterior view of the front of the Bluebell small home style at Glendale Homes Park in Brandon, Manitoba. The home has front porch with white metal railing. The home has red siding and white trim.

Explore the Wood Lilly

Home Features

  • 2 bedrooms, 1 bathroom

  • Open living/dining area with kitchen island & breakfast bar

  • Energy-efficient design with enhanced insulation

  • Triple-pane windows & high-performance heating/AC

  • Full-sized kitchen appliances fit

Interior Finishes

  • Drywall finish throughout

  • Luxury vinyl plank flooring

  • Custom cabinets with soft-close drawers

  • Quality Kohler fixtures & Delta faucets

Premium Exteriors

  • Screw pile foundation

  • Minimal-maintenance vinyl siding

  • Covered front porch with composite decking

  • 8’ x 10’ storage shed included with lot

Monthly Costs

    • Lot rent: $325 (includes yard & snow maintenance)

    • City license fee: $109.36

    • Total monthly cost: $434.36

Rent Includes

  • Yard Maintenance
  • Snow Clearing of Parking Lot & Sidewalks
  • Storage Shed